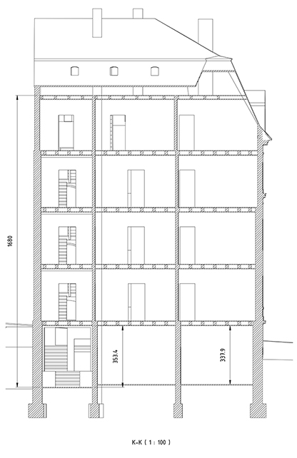
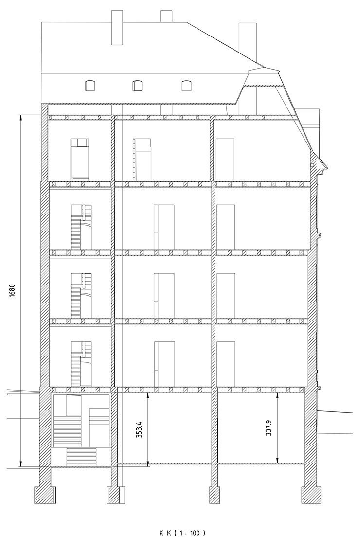
Der Ersatz der Archivpläne
Es ist verständlich, dass man die benötigten Baupläne, die eine möglichst ursprüngliche Substanz darstellen, nicht in ein paar Monaten erstellen kann. Denn es bringt nichts den Ist-Zustand des Gebäudes zu dokumentieren. Es weicht ja erheblich von dem Zustand vor 1900 ab.
Zuerst haben wir den Zementputz und die Vorsatzwände entfernt. Dann folgte die Vermessung des Gebäudes.
























